Квартира Homer Residences: Квартира203 в Лімассол

Homer Residences: Квартира203 Homer Residences: Квартира203

Homer Residences: Квартира203

Розташування
Лімассол
Сторінка на сайті забудовника
Homer Residences: Квартира203
Телефон
+35725731111
Ціна від, €
329000
Забудовник
Property Gallery
Адреса
gps Limassol - City centre
Розташування
Build a route to the property

Розташування на карті

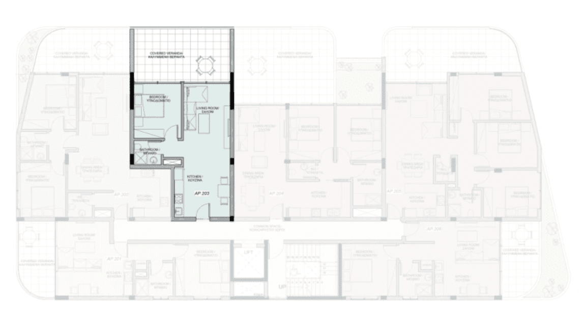
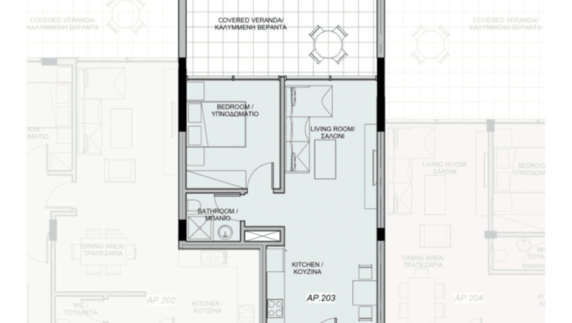
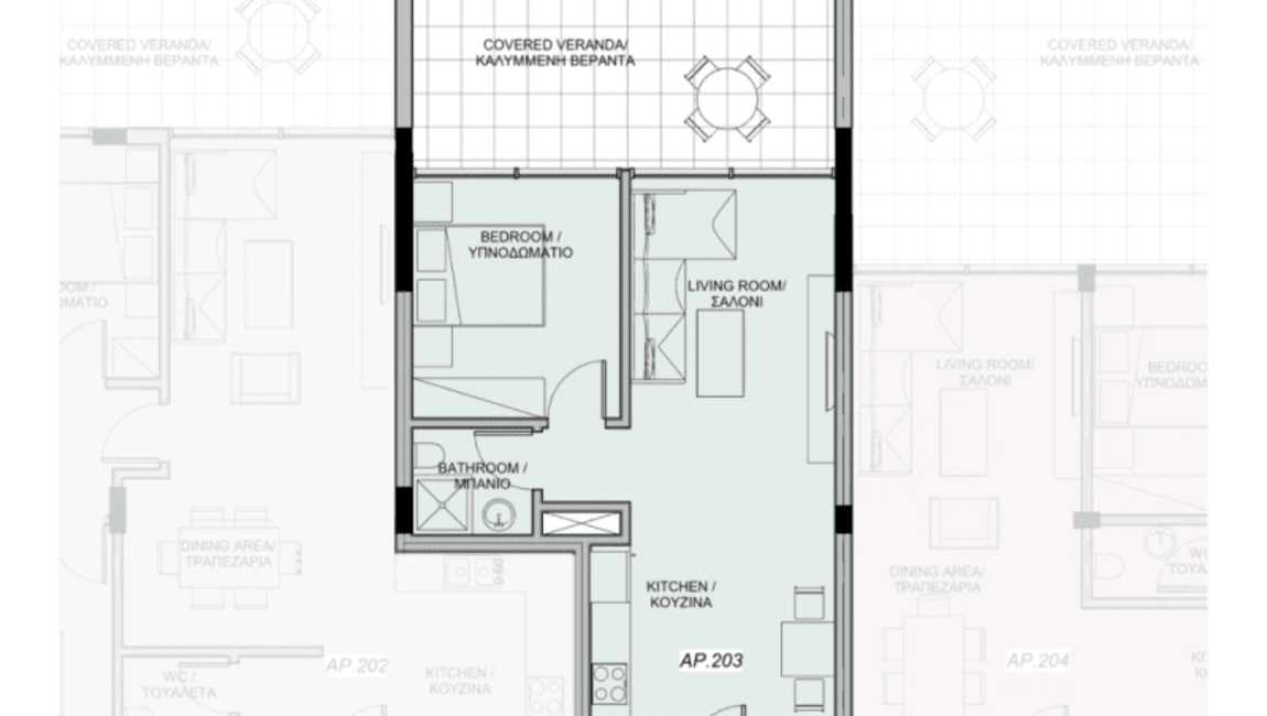
Характеристики нерухомості

Спальні
1
Тип нерухомості
Квартира
Внутрішня площа
74 m²

Property Plans

Homer Residences: Квартира 203
Інформація

  • Кількість спалень: 1
  • Площа: 74 м²
  • Тип: Квартира
  • До моря: 1500 м
  • Статус: У процесі
  • Ціна від: 329 000 €

КАЛЬКУЛЯТОР ПОДАТКІВ
+ПДВ: 16 450 € (5.00%)
Плата за передачу права власності (одноразово): 0 € (0%)
Держмито (одноразово): 658 € (0.20%)
Муніципальний податок (річний): 250 €/рік (0.03%)
Юридичні витрати (одноразово): від 7840 € (0.8%) до 9800 € (1%)

Податки розраховані для першого оформлення нерухомості на ваше ім’я.
Центр міста, Лімасол
Розташування

Найближчі місця:

  • Пляж Олімпіон: 1.8 км
  • Муніципальний сад: 1.4 км
  • Ресторан Salone: 1.3 км
  • Супермаркет Sklavenitis: 0.4 км
  • Фітнес-центр Co: 0.3 км
  • Початкова школа: 0.2 км

Резиденція

Пропонуємо вашій увазі наш новий сучасний житловий комплекс, розташований у самому серці Лімасола. Ця сучасна будівля включає три елегантні поверхи, де представлено 18 розкішних квартир, створених для максимального комфорту та стилю.

Різноманіття планувань, багатофункціональні простори, затишні інтер’єри, високоякісне оздоблення та багато зручностей задовольнять усі ваші вимоги.

Відмінне розташування нашого комплексу забезпечує пішу доступність до торгових центрів, модних кафе, ресторанів, шкіл та міських пам’яток, що робить його ідеальним вибором для активного способу життя.

Лазурове Середземне море знаходиться всього за 6 хвилин їзди, що дозволяє насолоджуватися міським життям та відпочинком на узбережжі

Схожі об'єкти